For Sale Farm Way, Buckhurst Hill, IG9 Offers Over £1,000,000
Incredible development opportunity
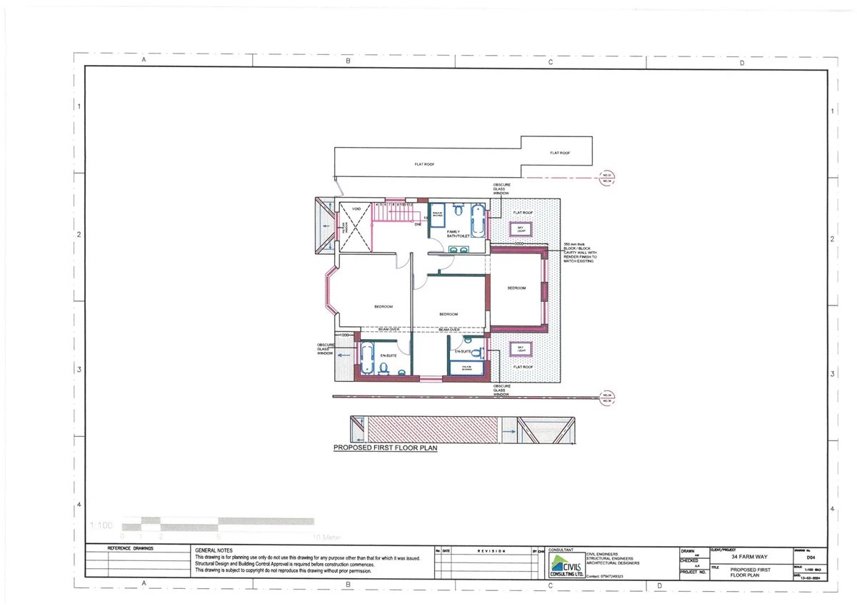
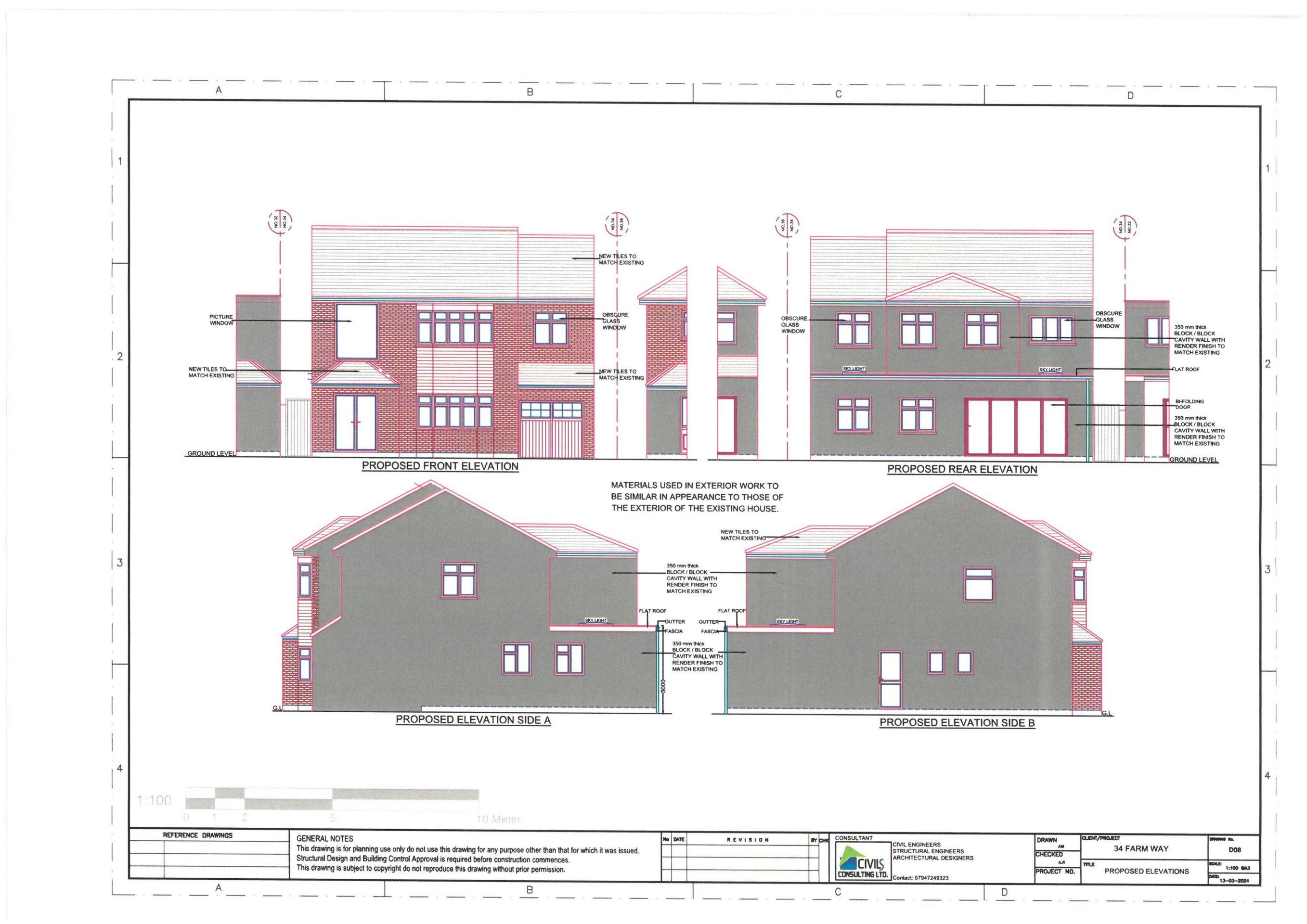
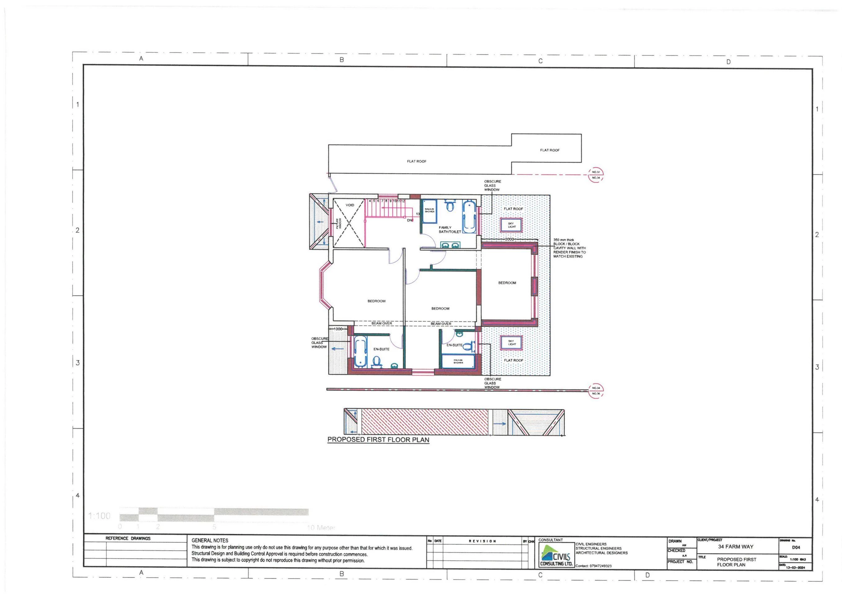
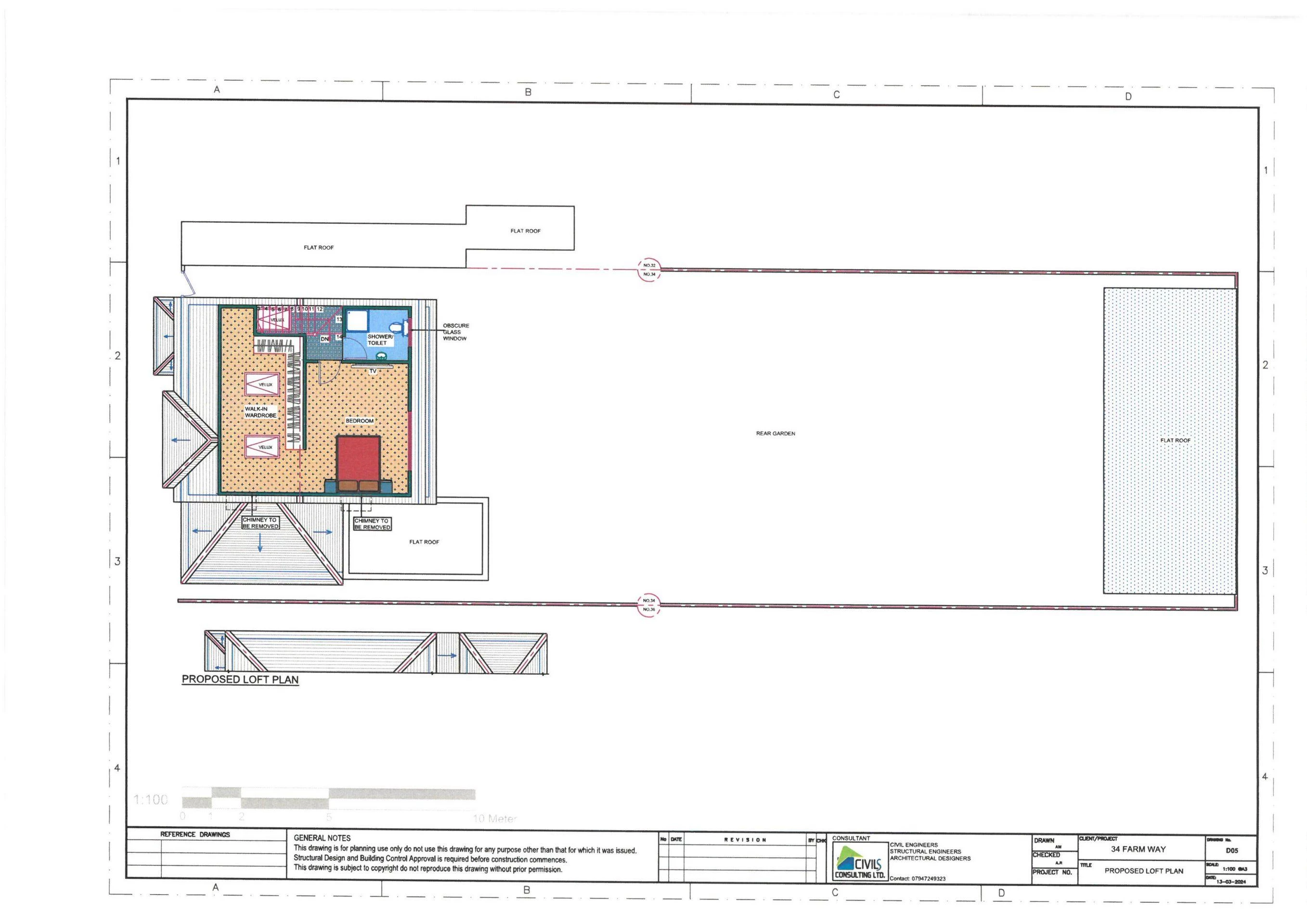
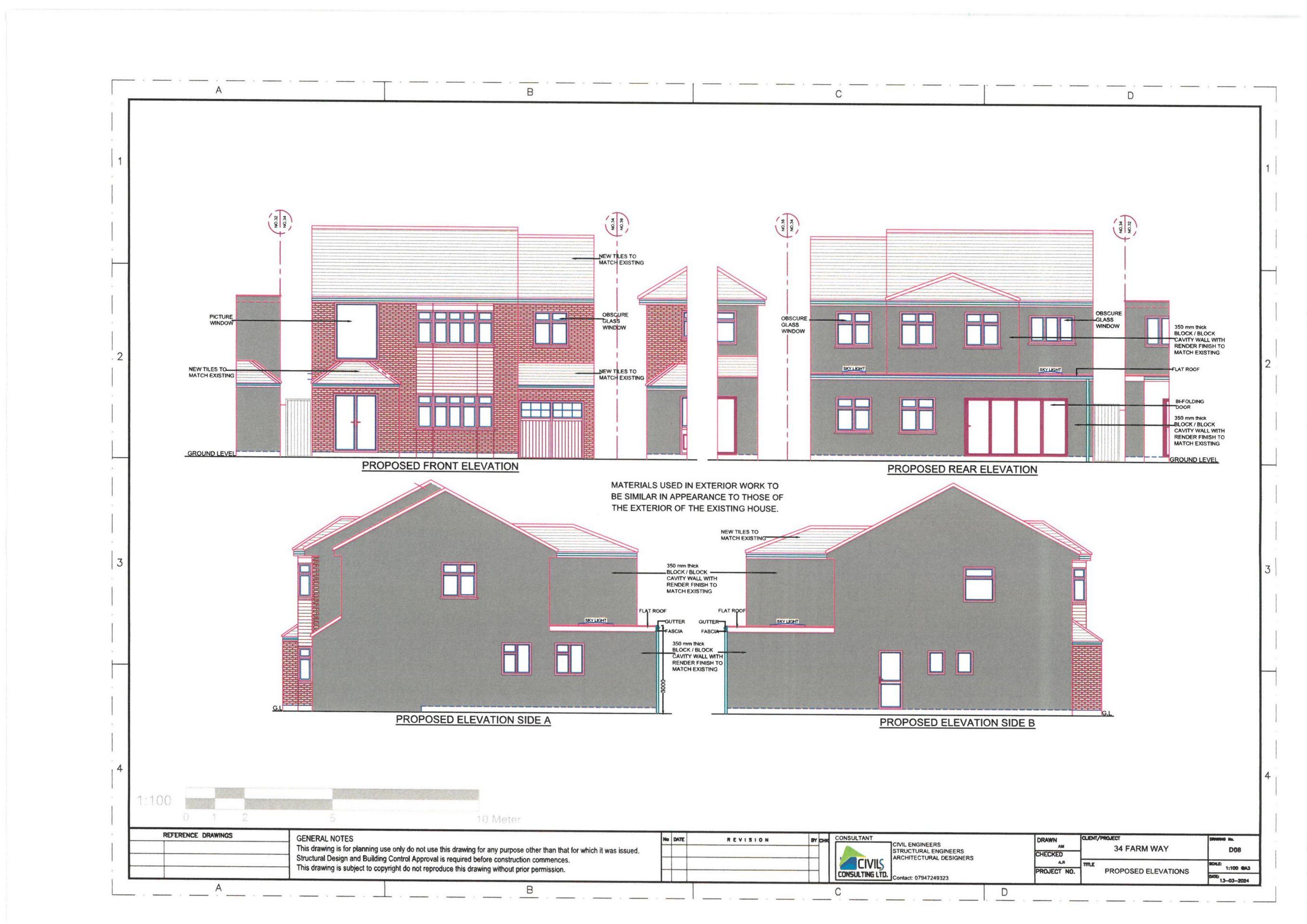
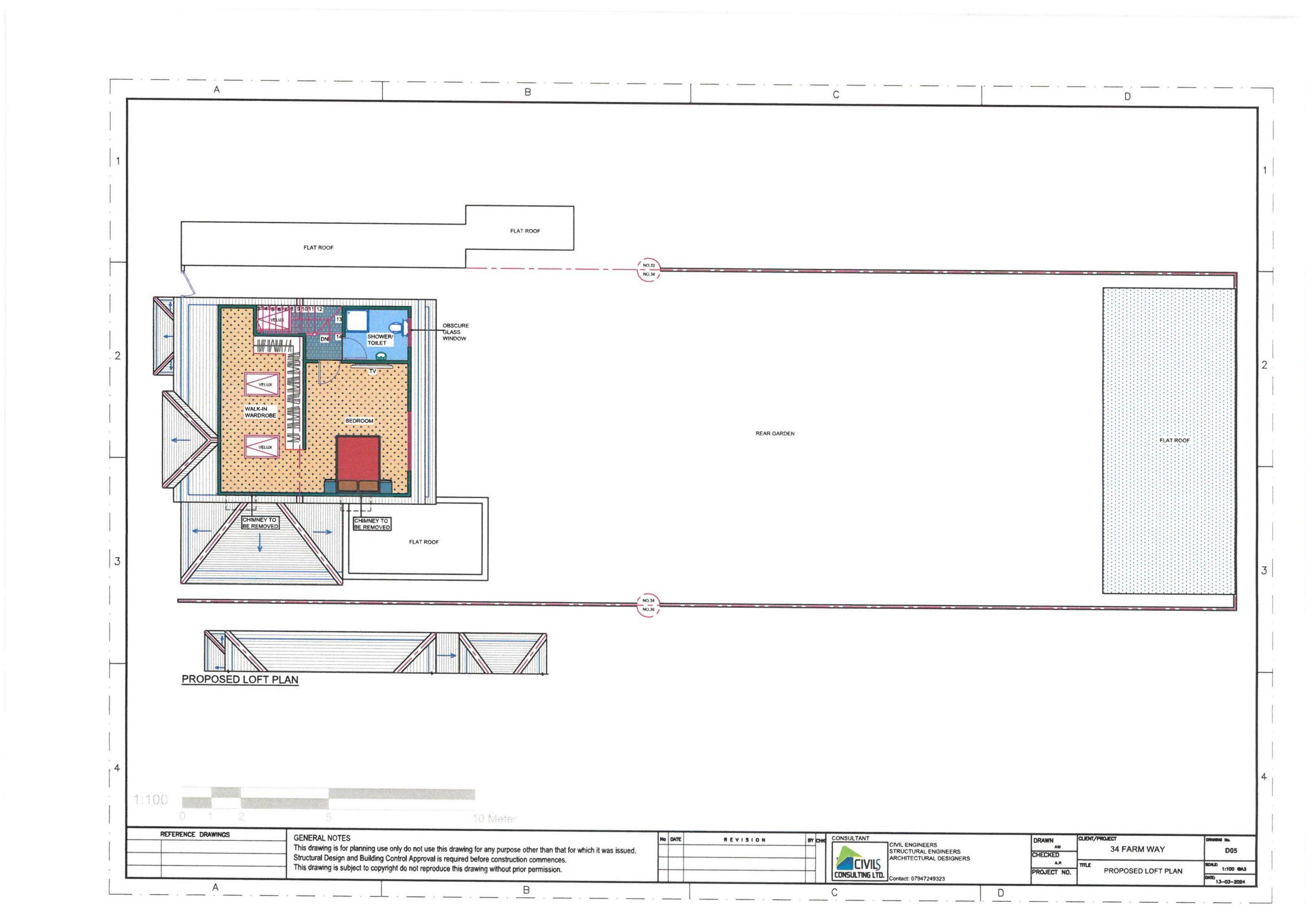
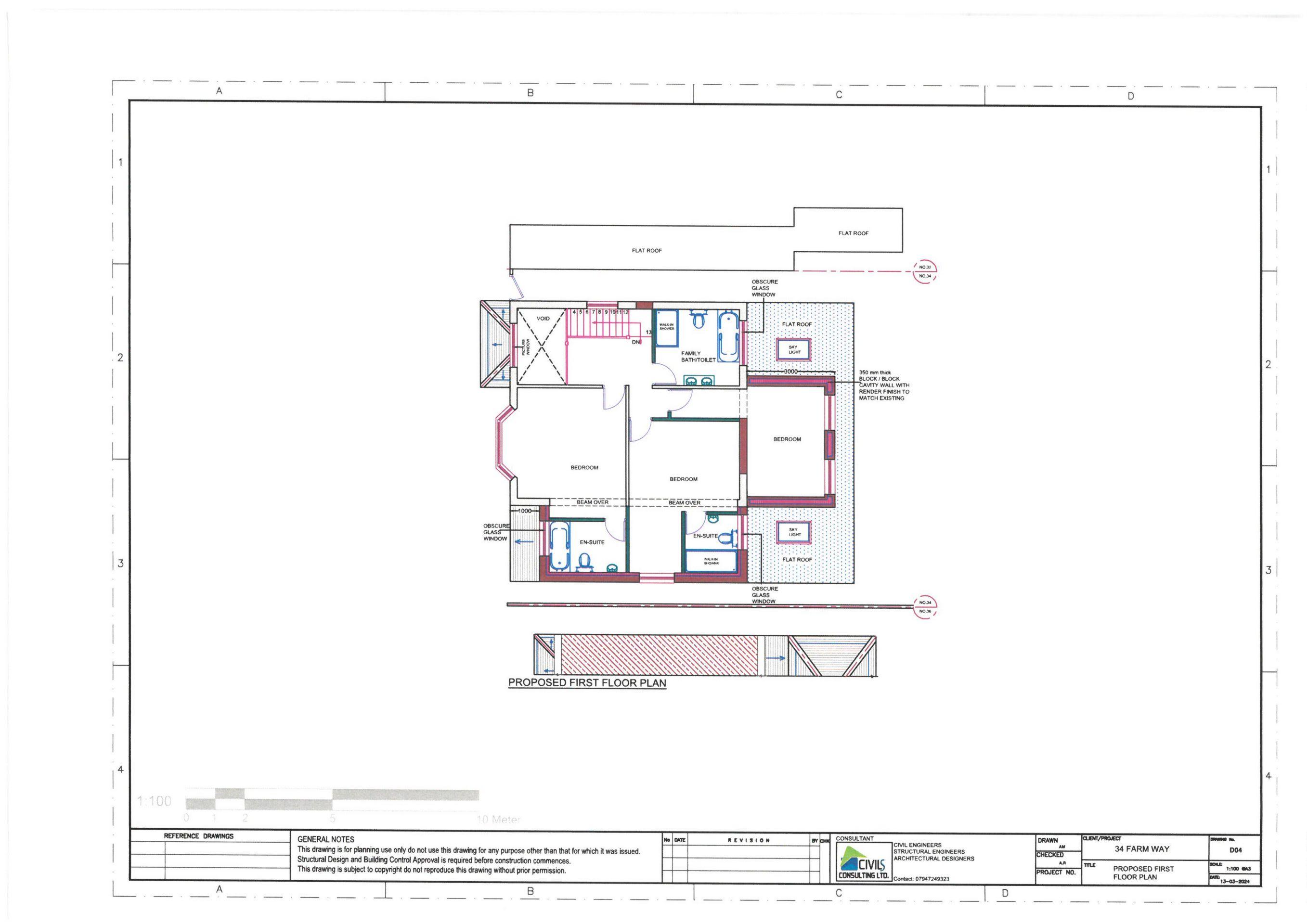
Planning consent passed for a substantial family home
Four bedrooms & four bathrooms
Spacious reception room
Open kitchen / diner with utility room
En Suites to three principal bedrooms
Garage and parking
Generous plot with south westerly facing aspect
Up to 2,600 sq ft of accommodation
Council Tax presently band G
Freehold
An incredible opportunity to create a stunning new home in a wonderful location for schools, the Central Line and Epping Forest. The present owner has planning consent to create a sizable 2,600 sq. ft. four bedroom property over three floors, and much of the ground work has already been done. Foundations laid, steels in place and the plot levelled, ready to complete the build.
Location
Farm Way is an excellent location with both Buckhurst Hill and Roding Valley Central Line stations close by. This particular spot proves popular with families as well respected state and independent schools are within easy reach. For shopping, Queens Road with its boutique shops, cafes and restaurants and Waitrose supermarket is within walking distance and there are local shops on Station Parade. Being just a stone's throw from Epping Forest there are always plenty of leisure pursuits on offer, in addition to a good range of sports clubs and a David Lloyd Centre a short drive away.
Property
This is an amazing opportunity to create a 2,600 sq. ft. family home to the buyer's choice. Planning consent has been passed to create a substantial four bedroom property across three floors along with a generous garden room. Plans are available on the Epping Forest Planning website under references EPF/1033/24, EPF/1034/24 and EPF/1035/24.
IMPORTANT NOTICE
Descriptions of the property are subjective and are used in good faith as an opinion and NOT as a statement of fact. Please make further specific enquires to ensure that our descriptions are likely to match any expectations you may have of the property. We have not tested any services, systems or appliances at this property. We strongly recommend that all the information we provide be verified by you on inspection, and by your Surveyor and Conveyancer.











